Hamburg (abki) – Die Mühlbergschule, ein denkmalgeschütztes Schulgebäude aus dem Jahr 1906, hat im Jahr 2022 eine beachtliche Transformation erfahren. Unter der Leitung der Stadt Frankfurt am Main und durch die architektonische Expertise von Trapez Architektur wurde die Schule am Standort Lettigkautweg 8 in Frankfurt-Sachsenhausen einer grundlegenden Sanierung und Erweiterung unterzogen.
Funktionale Erweiterung im begrenzten Raum
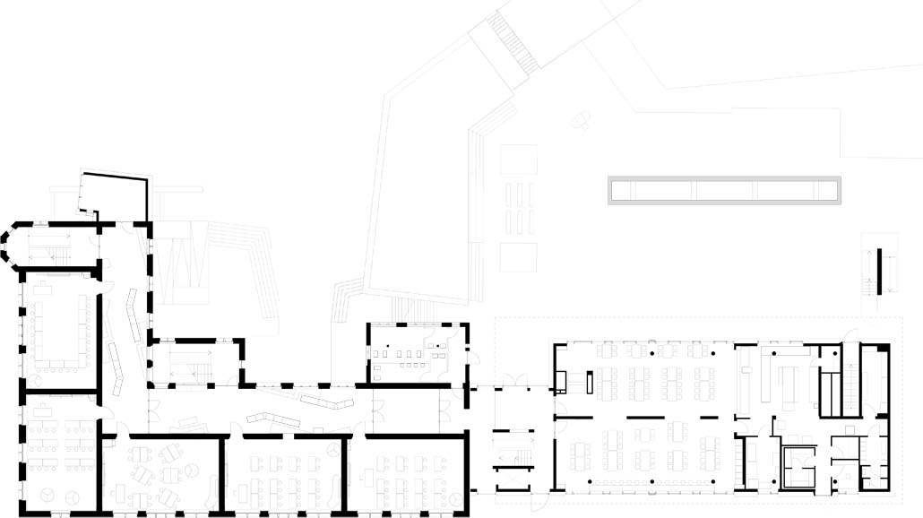
Das Hauptziel des Projekts war es, die Kapazität der Grundschule von drei auf fünf Züge zu erhöhen, ohne das beengte innerstädtische Grundstück zusätzlich zu belasten. Dazu entstanden drei neue Anbauten, die durch ihre kluge Planung und Integration bemerkenswert sind. Ein innovativer Ansatz wurde mit der Unterbringung einer der neuen Sporthallen im Untergeschoss realisiert, wodurch wertvolle Außenfläche für den Schulhof erhalten blieb. Die zweite Sporthalle befindet sich auf dem Dach des Ganztagsbereichs und bietet eine multifunktionale Nutzung für Sport und Veranstaltungen mit einem beeindruckenden Ausblick über die Stadt.
Architektonisches Statement und nachhaltige Integration
Ein weiteres architektonisches Highlight ist ein aufgeständerter Anbau, der den Eingangsbereich der Schule freihält und so einen einladenden Zugang schafft. Dieser Anbau setzt nicht nur ein visuelles Zeichen im Stadtteil Sachsenhausen, sondern harmoniert auch mit der umliegenden Bebauung.
Partizipation als Grundstein des Erfolgs
Ein Schlüssel zum Erfolg dieses Projekts war die sogenannte „Phase Null“ – ein Beteiligungsverfahren, das vor der eigentlichen Planung stattfand. In Zusammenarbeit mit Pädagogen und Architekten wurden Lehrer, Schüler, Eltern und städtische Ämter in die Planungsprozesse miteinbezogen. Diese frühzeitige und umfassende Beteiligung ermöglichte es, wichtige Impulse aufzunehmen und in das Enddesign einfließen zu lassen, was wesentlich zur Zufriedenheit aller Beteiligten beitrug.
Material und Fertigstellung
Die neuen Bauteile der Schule sind vorrangig mit Metallfassaden versehen, was dem Gebäudeensemble einen zeitgemäßen und doch respektvollen Umgang mit der historischen Bausubstanz verleiht. Die Fertigstellung des Projektes im Jahr 2022 markiert einen wichtigen Meilenstein in der Bildungsinfrastruktur von Frankfurt.
Die Erweiterung und Sanierung der Mühlbergschule zeigt eindrucksvoll, wie historische Substanz und moderne Architektur in Einklang gebracht werden können, um innovative und nachhaltige Lernumgebungen im Herzen der Stadt zu schaffen.


Quelle: Trapez Architektur GmbH, Hilfsmittel: KI, Lektorat: Architekturblatt