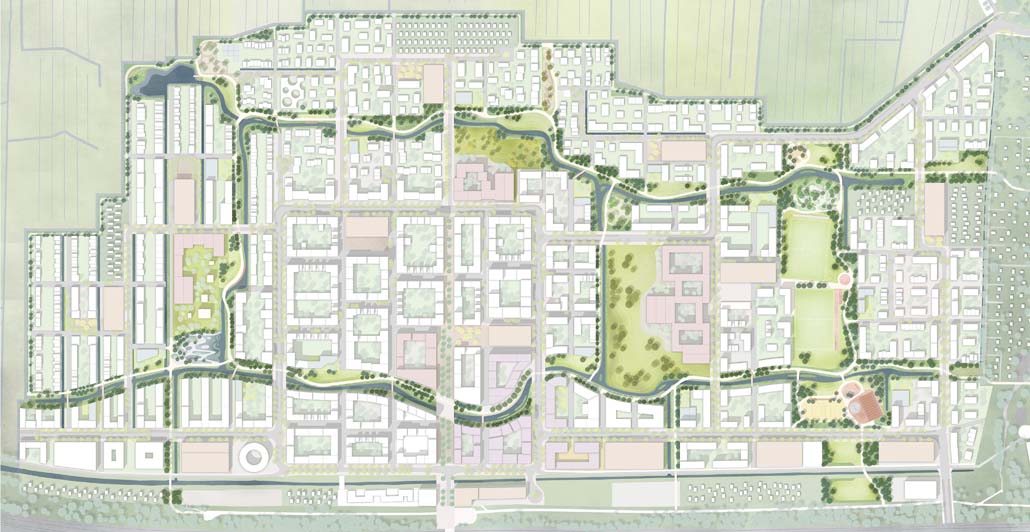
Hamburg (pm) – Anlass und Ziel des Wettbewerbs war die Ausgestaltung der beiden großen Freiräume Grüner Loop und Aktivitätspark in Oberbillwerder. Die rund 160.000 m2 große Fläche des Grünen Loops wird einen vielfältig nutzbareren Park mit durchgehendem Wasserbezug, der die Quartiere untereinander auf attraktive Weise verbindet, bilden und auch für die Entwässerung des Stadtteils sorgen. Teilflächen des Grünen Loops dienen dabei als Retentionsflächen und tragen so unter anderem zur Starkregenvorsorge und zur Erhöhung der Wasserverdunstung bei. Sport soll in Oberbillwerder als Bestandteil des alltäglichen Lebens verstanden werden. Der im Osten des 105. Stadtteils gelegene Aktivitätspark wird dabei das Zentrum des Sports darstellen.
Die Jury kürte das Atelier Loidl Landschaftsarchitekten Berlin zum Sieger im nicht offenen, einphasigen, freiraumplanerischen Realisierungswettbewerb für den Grünen Loop und den Aktivitätspark in Oberbillwerder. Insgesamt hatten neun Büros an dem Wettbewerb teilgenommen.
1. Preis: Atelier Loidl Landschaftsarchitekten Berlin GmbH
2. Preis: RMP Stephan Lenzen Landschaftsarchitekten, Bonn
3. Preis: TREIBHAUS Landschaftsarchitektur Hamburg
Jens Kerstan, Senator für Umwelt, Klima, Energie und Agrarwirtschaft: „Bei der Entwicklung neuer Stadtteile ist es wichtiger denn je, den Klimawandel mitzudenken und entsprechend weitsichtig zu planen und zu bauen. Dies haben wir als Umweltbehörde bei der Entwicklung des neuen, urbanen Stadtteils Oberbillwerder stets in den Mittelpunkt gestellt. Das Ergebnis kann sich sehen lassen, denn das Herzstück, der sogenannte Grüne Loop, ist ein Musterbeispiel für klimaresilientes Bauen. Im Grünen Loop wird das Oberflächenwasser bei Starkregen auf dafür vorgesehene Flächen verdunstungsfördernd aufgefangen, um Temperaturen auszugleichen und für eine Durchlüftung des gesamten Stadtteils zu sorgen. Neben der Begrenzung des Klimawandels sind solche Konzepte von herausragender Bedeutung, um uns an die Folgen des Klimawandels anzupassen.“

Kay Gätgens, Geschäftsführer IBA Hamburg: „Mit dem Grünen Loop entwickeln wir einen lebenswerten Alleskönner. Er verbindet die benachbarten Stadtteile mit Oberbillwerder, bietet sichere Wege zu Schulen und Kitas, lädt zur sportlichen Betätigung ein, schafft Lebensraum für Tiere und Pflanzen und steuert zudem zuverlässig die Entwässerung selbst bei extremen Starkregenereignissen. Die Wegeführung im Entwurf von Atelier Loidl Landschaftsarchitekten schafft eine gelungene Abwechslung zwischen intensiv genutzten Zonen, einfachen Erholungsflächen und naturbelassenen Bereichen. Oberbillwerder bekommt damit einen identitätsstiftenden Park, der viele Angebote für neue Gemeinschaften bildet.“ < /span>
Cornelia Schmidt-Hoffmann, Bezirksamtsleiterin Bergedorf: „Mit dem Konzept des Ateliers Loidl Landschaftsarchitekten wurde ein überzeugender Gewinner-Entwurf für den Grünen Loop in Oberbillwerder gefunden. Die Ideen zur Gestaltung des Aktivitätsparks werden den Grünen Loop zu einer beliebten Anlaufstelle für Sport und Bewegung machen, die alle künftigen Bewohnerinnen und Bewohnern gleichermaßen anspricht. Ich bedanke mich aber auch bei allen Teilnehmern des Wettbewerbs für die vielfältigen Ideen und freue mich, dass wir in Oberbillwerder nicht allein Wohnungen bauen werden, sondern einen neuen Stadtteil formen, der zugleich auch ein grüner und lebendiger Ort werden wird.“
Ute Müller, Stellvertretende Amtsleitung, Behörde für Stadtentwicklung und Wohnen: „Der Entwurf von Atelier Loidl begeistert und erfüllt die vielfältigen Anforderungen an den Grünen Loop und den Aktivitätspark mit gestalterischer Bravour und einer angenehmen Offenheit für unterschiedliche, auch zukünftige neue Nutzungen. Die Ausbildung des Grünen Loops als naturnaher Landschaftsraum, in den intensiv nutzbare Angebote an besonderen Orten sorgfältig eingefügt sind, ermöglicht in guter Balance sowohl urbane Lebendigkeit als auch ruhiges Naturerleben und Rückzugsorte für Tiere. Mit der Umsetzung dieses Entwurfs bietet sich die Chance einen zentralen Baustein für einen lebenswerten neuen Stadtteil zu verwirklichen.
Grüner Loop (ca. 160.000 m²)
Als wichtigste und größte Parkstruktur soll der Grüne Loop Markenzeichen und Herzstück Oberbillwerders werden. Im Park werden attraktive Spiel- und Sportflächen entstehen, um die Bewegung im Alltag der Bewohner:innen zu fördern. Gleichzeitig entsteht dort ein einzigartiges Ökosystem mit einem qualitätvollen Lebensraum für Tiere und Pflanzen. Der Grüne Loop wird verbindendes Element zwischen Quartieren und angrenzenden Stadtteilen sein und alle öffentlichen Einrichtungen wie Kitas und Schulen sicher erreichbar mach sowie miteinander vernetzen.

Aktivitätspark (ca. 40.000 m²)
Der Aktivitätspark wird Bestandteil eines größeren Grünzuges durch Oberbillwerder. Die Sportfelder im Aktivitätspark sollen durch verschiedene Nutzergruppen, wie Schüler:innen, Vereine und die Bewohner:innen genutzt werden. Ziel des Wettbewerbs war es, gestalterische Lösungen entwickeln, um mögliche Konflikte zwischen den Sporttreibenden und den Anwohner:innen des Aktivitätsparks, z.B. aufgrund von Lärmentwicklung zu vermeiden.

Gestaltung
Im Grünen Loop wird eine Entwässerungsanlage entstehen, deren Gewässerlauf nach wasserwirtschaftlichen Vorgaben naturnah gestaltet wird. Die Herausforderung besteht darin, die Entwässerungsgräben nicht als technische Anlage, sondern als qualitätvollen Freiraum erlebbar zu machen. Dabei sollen attraktive Zugänge zum Wasser geschaffen werden.
Der Verlauf der Wege im Grünen Loop wird inklusive erforderlicher Stege zur Querung des Gewässers geplant. Es werden qualitätvolle Verbindungen zu den anschließenden Quartieren und öffentlichen Einrichtungen wie z.B. Schulen hergestellt.
Im Grünen Loop sind mehrere Spiel- und Aktivitätsplätze für Personen verschiedenen Alters vorgesehen. Die Spielplätze sollen so gestaltet sei, dass sie die Möglichkeit bieten, die Umwelt bewusst wahrnehmen zu können.
Für den Grünen Loop sowie den Aktivitätspark wird ein Bepflanzungskonzept entwickelt, das dem Ort gerecht wird und zu einer hohen Vielfalt beiträgt.
Öffentlichkeitsbeteiligung
Vor Beginn des Wettbewerbs gab es verschiedene Bürgerbeteiligungsformate, in denen Hinweise und Ideen für die Gestaltung des Grünen Loops formuliert wurden. Zu den eingereichten Wettbewerbsarbeiten konnten Bürger:innen einen Tag vor dem Preisgericht Anregungen und Hinweise geben.
Das Ergebnis des Preisgerichts wird vom 31.7. bis 7.8. in den Räumlichkeiten der IBA Hamburg auf dem IBA DOCK ausgestellt.
Oberbillwerder
Im Bezirk Bergedorf wird mit Oberbillwerder der 105. Stadtteil Hamburgs entstehen. Die Gesamtfläche des Stadtteils beträgt ca. 118 ha. Oberbillwerder soll Wohnraum für ca. 14.000 Bewohner:innen bieten. Im Stadtteil werden ca. 4.000 – 5.000 Arbeitsplätze entstehen. Es werden ca. 260.000 m² öffentliche Grün- und Freiflächen mit zahlreichen Spielplätzen, großem Aktivitätspark und ein Sportbad geschaffen. Mehr Informationen unter: https://www.oberbillwerder-hamburg.de/
Pressemitteilung: IBA Hamburg GmbH